ソーラー・LED照明灯
昼白色 <LN-LX1-S(耐塩害仕様)>
受注生産
LN-LX1-S(一般)
希望小売価格 1,000,000円 + 税
製品データダウンロード
※必ず工事説明書および取扱説明書をよくお読みの上、正しくお使い下さい。
概略仕様
仕様
| 本体 | アルミ(シルバー塗装) |
|---|---|
| 太陽電池架台 | アルミ,ステンレス(シルバー塗装) |
| 電池ボックス | アルミ(アルマイト,クリアつや消し塗装) |
| 支柱 | アルミ(アルマイト,クリアつや消し塗装) |
| 取付ベース | アルミ(シルバー塗装) |
| 質量 | 約127㎏ |
| 光源寿命 | 40,000時間 |
| 動作環境温度 | −15~40℃ |
| 耐風速 | 60m/s(LN-LX1-S) |
| 備考 | 点灯時間 日没~日の出(省エネモード併用終夜点灯) ※感震センサー作動(震度5相当)時には当日及び翌日は日没から日の出まで省エネモードなしのフル点灯 点灯制御 日没後省エネ点灯1時間+フル点灯5時間+日の出まで2段階省エネ点灯 |
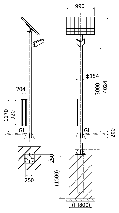
概略図

昼白色 5700K Ra70
LN-LX1-S(一般)
LN-LXS1-S(耐重塩害仕様)
![水平面照度[lx] 距離[m]](/business/led_lighting/contents/lineup/solarledlighting/images/lx3_lxs3/img_02.gif)
| 器具光束 | 約1800 lm※ |
|---|
※ 充電時(日中時)に周囲温度が0℃を下回ると、点灯しないことがあります。1週間以上の長期に渡り、昼間の気温が連続して0℃を下 回ると、点灯しないことがあります
- LED素子はバラツキがあるため、商品ごとに発光色、明るさが異なることがあります。
- 商品の価格には、工事費は含まれておりません。





